$585,000
1,012
SQ FT
$578
SQ/FT
413 Kenbrook Circle
@ Monterey Rd. - 11 - South San Jose, San Jose
- 2 Bed
- 2 Bath
- 2 Park
- 1,012 sqft
- SAN JOSE
-
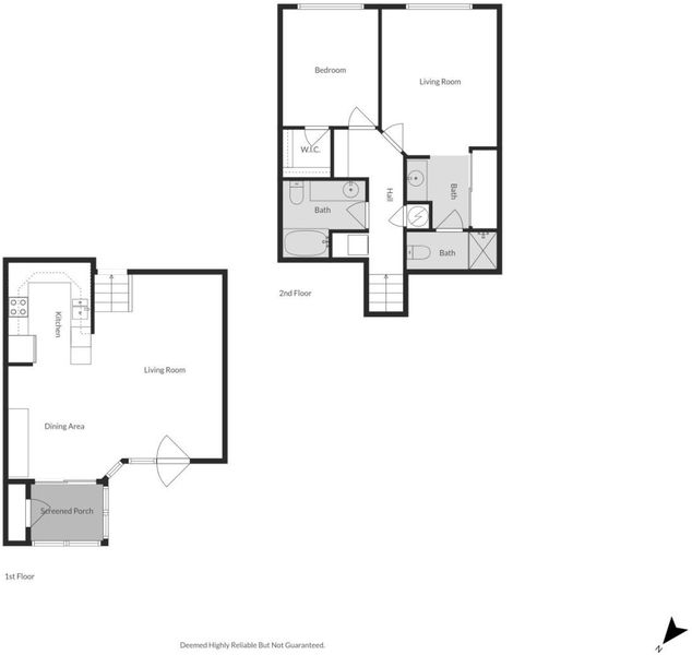
Discover this charming 2-bedroom, 2-bathroom home in the vibrant city of San Jose. Spanning approximately 1,012 square feet, this residence features a well-designed kitchen with an eat-in dining area, perfect for casual meals. The home is equipped with central forced air heating, ensuring comfort during cooler months. Although it does not have a cooling system, the temperate climate of San Jose offers natural comfort. Enjoy the warmth and ambiance of a cozy living area, a great spot for relaxation. The home includes convenient laundry facilities, making chores a breeze. Flooring throughout the home is both practical and stylish, enhancing the overall interior aesthetic. With a two-car garage, you'll have ample space for parking and storage. Located within the Franklin-McKinley Elementary School District, this home offers a practical and comfortable living environment in a desirable area of San Jose.
- Days on Market
- 13 days
- Current Status
- Active
- Original Price
- $585,000
- List Price
- $585,000
- On Market Date
- Nov 13, 2025
- Property Type
- Condominium
- Area
- 11 - South San Jose
- Zip Code
- 95111
- MLS ID
- ML82027477
- APN
- 497-55-045
- Year Built
- 1987
- Stories in Building
- 1
- Possession
- Unavailable
- Data Source
- MLSL
- Origin MLS System
- MLSListings, Inc.
Captain Jason M. Dahl Elementary School
Public K-6 Elementary
Students: 549 Distance: 0.2mi
KIPP Heritage Academy
Charter 5-8
Students: 452 Distance: 0.7mi
Los Arboles Elementary School
Public K-3 Elementary
Students: 353 Distance: 0.7mi
Rocketship Rising Stars
Charter K-5
Students: 631 Distance: 0.7mi
Andrew P. Hill High School
Public 9-12 Secondary
Students: 1867 Distance: 0.8mi
Daniel Lairon Elementary School
Public 4-8 Elementary
Students: 383 Distance: 0.9mi
- Bed
- 2
- Bath
- 2
- Parking
- 2
- Carport
- SQ FT
- 1,012
- SQ FT Source
- Unavailable
- Cooling
- None
- Dining Room
- Dining Area, Eat in Kitchen, No Formal Dining Room
- Disclosures
- NHDS Report
- Family Room
- No Family Room
- Foundation
- Concrete Perimeter and Slab
- Heating
- Central Forced Air - Gas
- * Fee
- $430
- Name
- ACE Property Management
- *Fee includes
- Insurance - Common Area
MLS and other Information regarding properties for sale as shown in Theo have been obtained from various sources such as sellers, public records, agents and other third parties. This information may relate to the condition of the property, permitted or unpermitted uses, zoning, square footage, lot size/acreage or other matters affecting value or desirability. Unless otherwise indicated in writing, neither brokers, agents nor Theo have verified, or will verify, such information. If any such information is important to buyer in determining whether to buy, the price to pay or intended use of the property, buyer is urged to conduct their own investigation with qualified professionals, satisfy themselves with respect to that information, and to rely solely on the results of that investigation.
School data provided by GreatSchools. School service boundaries are intended to be used as reference only. To verify enrollment eligibility for a property, contact the school directly.
















